گاما رو نصب کن!

{{ number }}
اعلان ها
اعلان جدیدی وجود ندارد!
کاربر جدید

جستجو

پربازدیدها: #{{ tag.title }}

میتونی لایو بذاری!

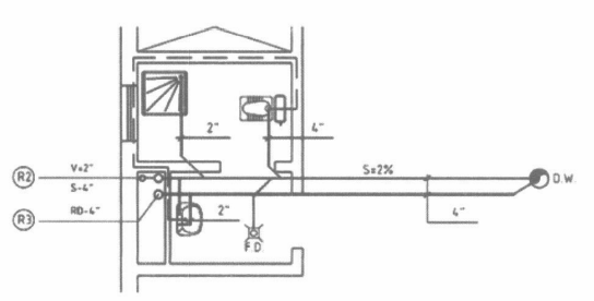
با توجه به پلان داده شده، گزینه صحیح را انتخاب نمایید.

1 ) 

شیب لوله قائم 4 درصد و قطر آن 4 اینچ است.

2 ) 

خط چین‌ها، نشان دهنده لوله فاضلاب توالت می‌باشند.

3 ) 

علامت اختصاری .F.D بیانگر دریچه بازدید می‌باشد.

4 ) 

رایزر شماره 3، مربوط به آب باران است و ابتدای آن بر بالای بام قرار دارد.

تحلیل ویدئویی تست

منتظریم اولین نفر تحلیلش کنه!